Commercial Projects > Summit Bank
![]() |
![]() |
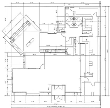
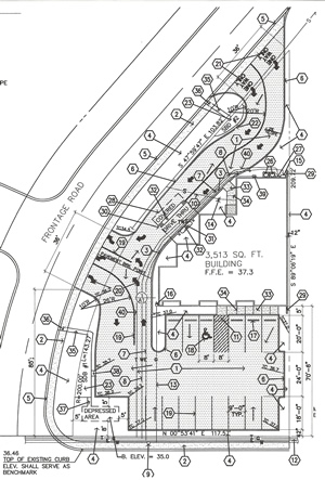
Summit Bank, Prescott Valley, Arizona
3,521 square foot frame and stucco bank building in Prescott Valley, Arizona.

| Phone: (928) 443-5812 | waka@cableone.net |
| © 2010 W. Alan Kenson & Associates, P.C. | |
| Site by Prescott Computer Guy | |


