Commercial Projects > Zeke's Eatin' Place
![]() |
![]() |
![]() |
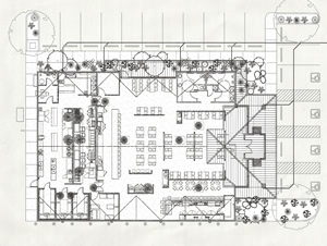
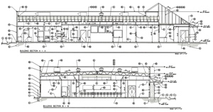
Zeke's Eatin' Place, Prescott Valley, Arizona
5,960 square foot frame and stucco restaurant building in Prescott Valley, Arizona.

| Phone: (928) 443-5812 | waka@cableone.net |
| © 2010 W. Alan Kenson & Associates, P.C. | |
| Site by Prescott Computer Guy | |



