Industrial > Webet Contracting
![]() |
![]() |
![]() |
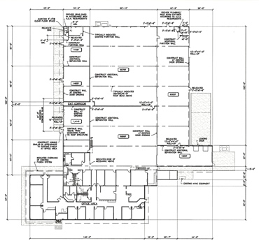
Webet Contracting, Prescott Valley, Arizona
53,000 square foot pre-engineered metal building with corporate offices and manufacturing area in Prescott Valley, Arizona.

| Phone: (928) 443-5812 | waka@cableone.net |
| © 2010 W. Alan Kenson & Associates, P.C. | |
| Site by Prescott Computer Guy | |



